st118 - page 63
53
ตํ
ารวจนํ
้
าเกาะสมุ
ย จํ
านวน 1 แห่
ง แผนก 13 กองกํ
ากั
บการ 3กองกํ
ากั
บการตํ
ารวจท่
องเที่
ยว
จํ
านวน 1 แห่
ง ซึ่
งในด้
านความปลอดภั
ยและทรั
พย์
สิ
นพื
้
นที่
เกาะสมุ
ยจากสถิ
ติ
ข้
อมู
ลคดี
อาญาปี
พ.ศ. 2549-2551ข้
อมู
ลณ วั
นที่
29 เดื
อนมิ
ถุ
นายน 2552 รายละเอี
ยดตามตารางที่
3.3
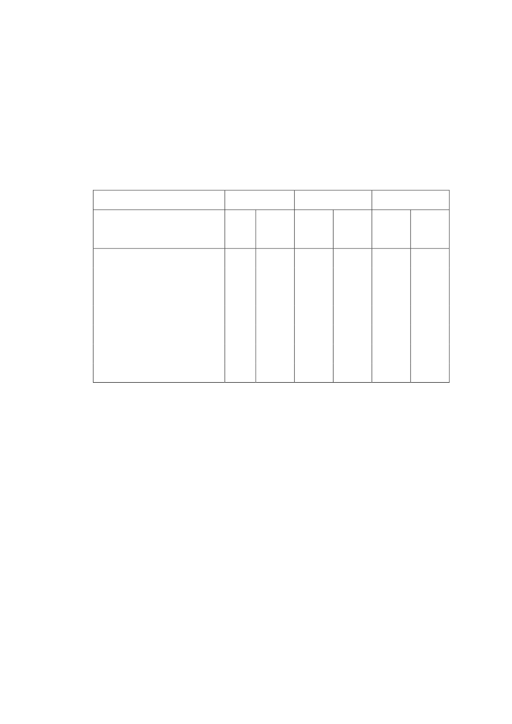
ตารางที
่
3.3 แสดงสถิ
ติ
ข้
อมู
ลคดี
อาญา
ปี
พ.ศ.
2549
2550
2551
ประเภทคดี
เกิ
ด
(คดี
)
จั
บ
(ราย)
เกิ
ด
(คดี
)
จั
บ
(ราย)
เกิ
ด
(คดี
)
จั
บ
(ราย)
ยาเสพย์
ติ
ด
365 365 467 467 278
278
คดี
อุ
กฉกรรจ์
และคดี
สะเทื
อน
ขวั
ญ
34 15
24
6
8
6
คดี
ประทุ
ษร้
ายต่
อชี
วิ
ต /ร่
างกาย 142 65
111
31
38
23
คดี
ประทุ
ษร้
ายต่
อทรั
พย์
242 83
312 148
85
49
คดี
ที่
น่
าสนใจ
76 15
92
19
32
8
คดี
ที่
รั
ฐเป็
นผู
้
เสี
ยหาย
693 1,354 751 1,307
381
614
ที่
มา : สถานี
ตํ
ารวจภู
ธรเกาะสมุ
ย, 2553
ทรั
พยากรธรรมชาติ
ทรั
พยากรธรรมชาติ
ของอํ
าเภอเกาะสมุ
ยประกอบด้
วย ทรั
พยากรดิ
นนํ
้
า ป่
าไม้
สั
ตว์
ป่
า
และสั
ตว์
นํ
้
า และทรั
พยากรการท่
องเที่
ยว ทรั
พยากรดิ
น จากการสํ
ารวจทรั
พยากรดิ
นในบริ
เวณ
เกาะสมุ
ย โดยกรมพั
ฒนาที่
ดิ
นสามารถจํ
าแนกชุ
ดดิ
นได้
8 ชุ
ด ได้
แก่
ดิ
นชุ
ดทุ
่
งหว้
า ดิ
นชุ
ดหั
วหิ
น
ดิ
นชุ
ดบาเจาะ ดิ
นชุ
ดระยอง ดิ
นชุ
ดโคกตะเกี
ยน ดิ
นชุ
ดไม้
ยาว และดิ
นชุ
ดท่
าจี
น กระจายตั
วอยู
่
ทั่
วไปตามที่
ลาดเชิ
งเขา ที่
ราบซึ่
งเป็
นพื
้
นที่
เกษตรกรรมและที่
ชุ
มชน และที่
ราบชายฝั่
ง แต่
จากการ
พั
ฒนาการท่
องเที่
ยวของเกาะสมุ
ย มี
การใช้
พื
้
นที่
ดิ
นไปเพื่
อกิ
จกรรมการบริ
การ ที่
พั
ก ตลอดจน
กิ
จกรรมการพั
กผ่
อนหย่
อนใจของนั
กท่
องเที่
ยว ส่
งผลกระทบต่
อการใช้
ที่
ดิ
นเพื่
อเกษตรกรรมของ
เกาะสมุ
ย รวมถึ
งการเปิ
ดหน้
าดิ
นรุ
กลํ
้
าพื
้
นที่
ลาดเชิ
งเขา เพื่
อพั
ฒนาลายของดิ
นและเกิ
ดความไม่
สวยงามของสภาพธรรมชาติ
ในจํ
านวนที่
ดิ
น 227 ตารางกิ
โลเมตร หรื
อ 142,031 ไร่
หากจํ
าแนก
การใช้
ประโยชน์
ที่
ดิ
นส่
วนใหญ่
เป็
นพื
้
นที่
ที่
ใช้
เพื่
อการเกษตรมากที่
สุ
ดประมาณร้
อยละ 80จํ
าแนก
เป็
นสวนมะพร้
าว 84,310 ไร่
ทุ
เรี
ยน11,037 ไร่
นอกจากนั
้
นเป็
นป่
าสงวน 2 แห่
ง คื
อบริ
เวณนํ
้
าตก
1...,53,54,55,56,57,58,59,60,61,62
64,65,66,67,68,69,70,71,72,73,...290